本文へスキップ

お問い合わせTEL.043-433-1111

〒284-0035 千葉県四街道市和田161

四街道総合公園

総合公園施設概要

建物

建築面積 5,574.9㎡
延べ床面積 9,028.0㎡
建物構造 地上2階、地下1階

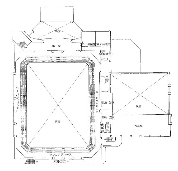
体育館内 案内図

営業時間

午前9時から午後9時
休館日の前日は午後5時まで

休館日

毎週月曜日(祝日の場合はその翌日)
年末年始(12月28日から1月4日)

総合公園園内紹介

公園概要

名称 四街道総合公園
面積 19.3ha
その他 園内5つの広場

自由広場

展望広場

南側広場

(臨時駐車場として開放する場合があります)

幼児広場

わんぱく広場(トリムコース)

バリアフリー遊具

コンビネーション遊具

写真

園内散策スポット

木道

修景池

芝生桟敷

園内MAP

園内MAP (pdfファイル)
園内MAP (pdfファイル)

注意事項

公園利用の注意事項

  1. 必ず犬に手綱をつけて散歩させてください。放すことは千葉県条例で禁止されています。
  2. 砂場は子供の遊び場です。ペットのトイレにしないでください。
  3. 施設内での飲酒は禁止です。
  4. 園内は、多くの人が利用します。周囲の人が迷惑する遊びや危険な行為はご遠慮ください。
  5. 施設内での花火は禁止です。
  6. ゴミは持ち帰ってください。樹木や草花を折ったり、持ち帰ったりしないでください。
  7. 池の魚を釣らないでください。

条例に記載されている使用制限

四街道総合公園有料公園施設管理規則  第10条(使用の制限)

下記事項に該当する場合、有料公園施設の使用を拒否し、又は退場いただくことがあります。

  1. 有料公園施設内の秩序を乱し、又は風俗を害するおそれがあるとき。
  2. 有料公園施設内の施設及びその附属施設をき損するおそれがあるとき。
  3. その他有料公園施設の管理上支障があると認められるとき