| 所在地 | 四街道市もねの里3-20-30 |
|---|---|
| 敷地面積 | 1,998.92㎡ |
| 延べ床面積 | 1,363.54㎡ |
| 建物の構造 | 鉄筋コンクリート造 地下1階 地上2階 |
| 施設名称 | 金額 (1時間) |
面積 | 収容 人数 |
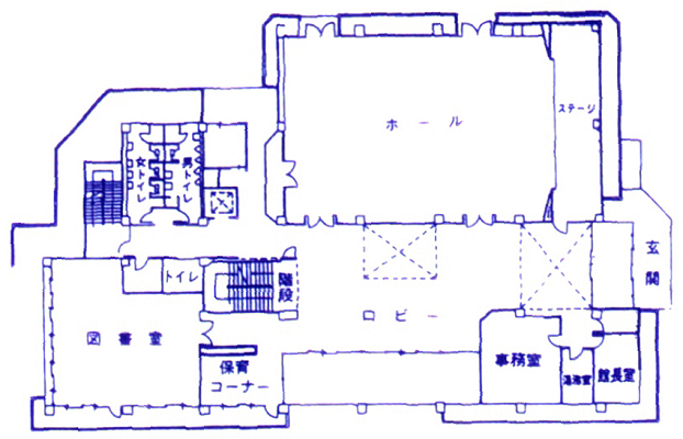
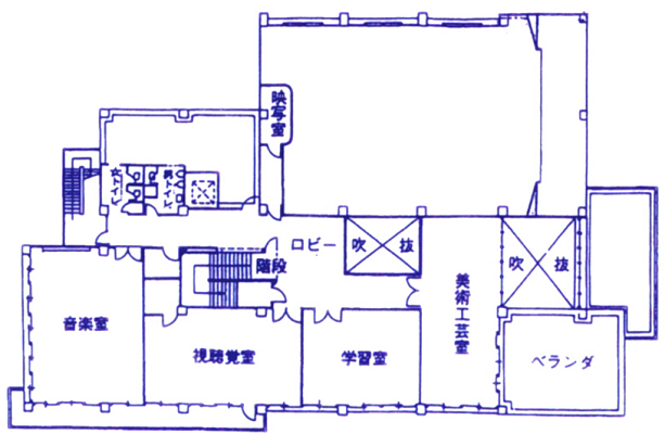
施設概要 | |
|---|---|---|---|---|---|
| 1階 | ホール | 900円 | 198㎡ | 200名 | グランドピアノ1、卓球台4、椅子、黒板1 |
| 図書室 | ー | 79㎡ | 15名 | 長机、椅子 | |
| 2階 | 第2学習室 | 160円 | 44㎡ | 20名 | 机、椅子、黒板1 |
| 視聴覚室 | 220円 | 58㎡ | 30名 | 机、椅子、黒板1 | |
| 音楽室 | 260円 | 68㎡ | 35名 | ピアノ1、机、椅子、黒板1、床カーペット | |
| 美術工芸室 | 220円 | 56㎡ | 15名 | 机、椅子、黒板1、電動ろくろ4機 | |
| 地階 | 和室 | 220円 | 58㎡ | 45名 | 机、黒板1、2部屋へ仕切り可 |
| 第1学習室 | 170円 | 45㎡ | 30名 | 机、椅子、黒板1 | |
| 団体活動室 | 50円 | 16㎡ | 15名 | 机、椅子、黒板1 | |
| 調理実習室 | 220円 | 58㎡ | 25名 | 調理台5台、椅子、黒板1 | |
| 別棟 | 陶芸窯 | 素焼き 2540円 本焼き 3560円 |
10㎡ | 30kWの電気窯あり |
| トイレ種別 | 設置内容 | |
|---|---|---|
| 1階 | 男 子 | 個室(洋式・和式)各1、小便器4 |
| 女 子 | 洋式3、和式1 | |
| 多目的 | 洋式1、おむつ替えシート1 | |
| 2階 | 男 子 | 個室(洋式)1、小便器2 |
| 女 子 | 洋式1、和式1 | |
| 地階 | 男 子 | 個室(洋式)1、小便器2 |
| 女 子 | 洋式1、和式1 |
第1駐車場 20台 / 身障者用 2台(玄関前1台)
第2駐車場 24台
臨時駐車場 40台
| 館内施設(図書室を除く) | 午前9時から午後9時 |
| 図書室 | 午前9時から午後5時 |
| 申請等窓口受付 | 午前9時から午後5時 |
| 図書室受付 | 午前9時から午後5時 |
毎月第4月曜日
年末・年始(12月29日から1月3日まで)
その他特に教育委員会が必要と認めた日
(公民館まつりの準備とまつり時は、休館となります。)